套筒的钻φ40H7孔夹具设计及机械加工工艺装备规程含4张CAD图AutoCAD图档

图档名称为:套筒的钻φ40H7孔夹具设计及机械加工工艺装备规程含4张CAD图,属于设备部件,工器具分类,软件为AutoCAD, 图纸格式为dwg,可在线预览,可编辑,可供设计参考

加入收藏
模型参数

模型ID:10331417

模型大小:1.94M

软件版本: AutoCAD 2004

模型格式:dwg

是否可编辑:可修改,包括参数

上传时间:2025-12-05

图纸介绍:

下载模型
三生烟火
作品: 0
粉丝: 0
文件列表
1. 1过程卡.JPG
317 KB
2. 2工序卡.JPG
232 KB
3. 3字数.JPG
57.3 KB
4. 4说明书前三页.JPG
410 KB
5. 5设计所包含文件.JPG
28.8 KB
6. 6夹具设计部分.JPG
477 KB
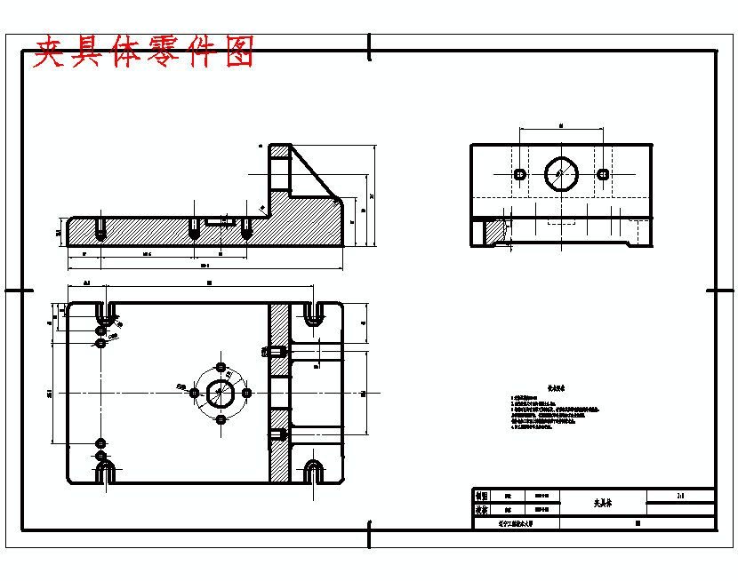
7. 夹具体零件图.dwg
35.6 KB
8. 夹具体零件图.gif
14.8 KB
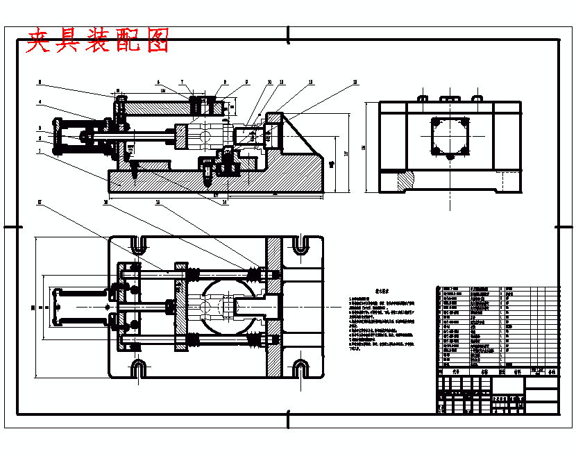
9. 夹具装配图.dwg
127 KB
10. 夹具装配图.gif
20.7 KB
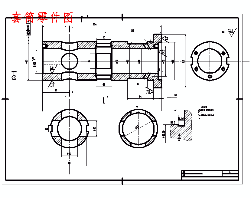
11. 套筒零件图.dwg
40.3 KB
12. 套筒零件图.gif
18.4 KB
13. 字数.JPG
57.3 KB
14. 工序卡.doc
60 KB
15. 机械加工工序卡片.doc
114 KB
16. 机械加工工艺卡片.doc
46.5 KB
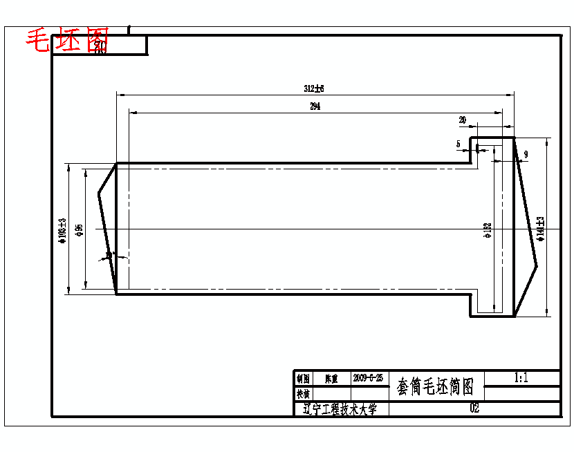
17. 毛坯图.dwg
11.5 KB
18. 毛坯图.gif
11.3 KB
19. 说明书-套筒的机械加工工艺规程及钻φ40H7孔夹具设计.doc
463 KB
【套筒的钻φ40H7孔夹具设计及机械加工工艺装备规程含4张CAD图】相关作品
滚动更载更多~
提示
×

下载该图档需要消耗10金币!

确认下载
加载中