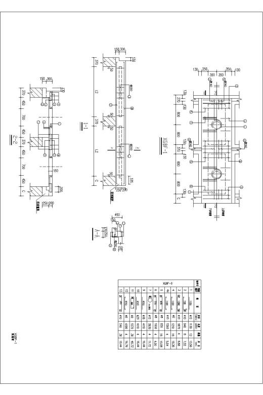
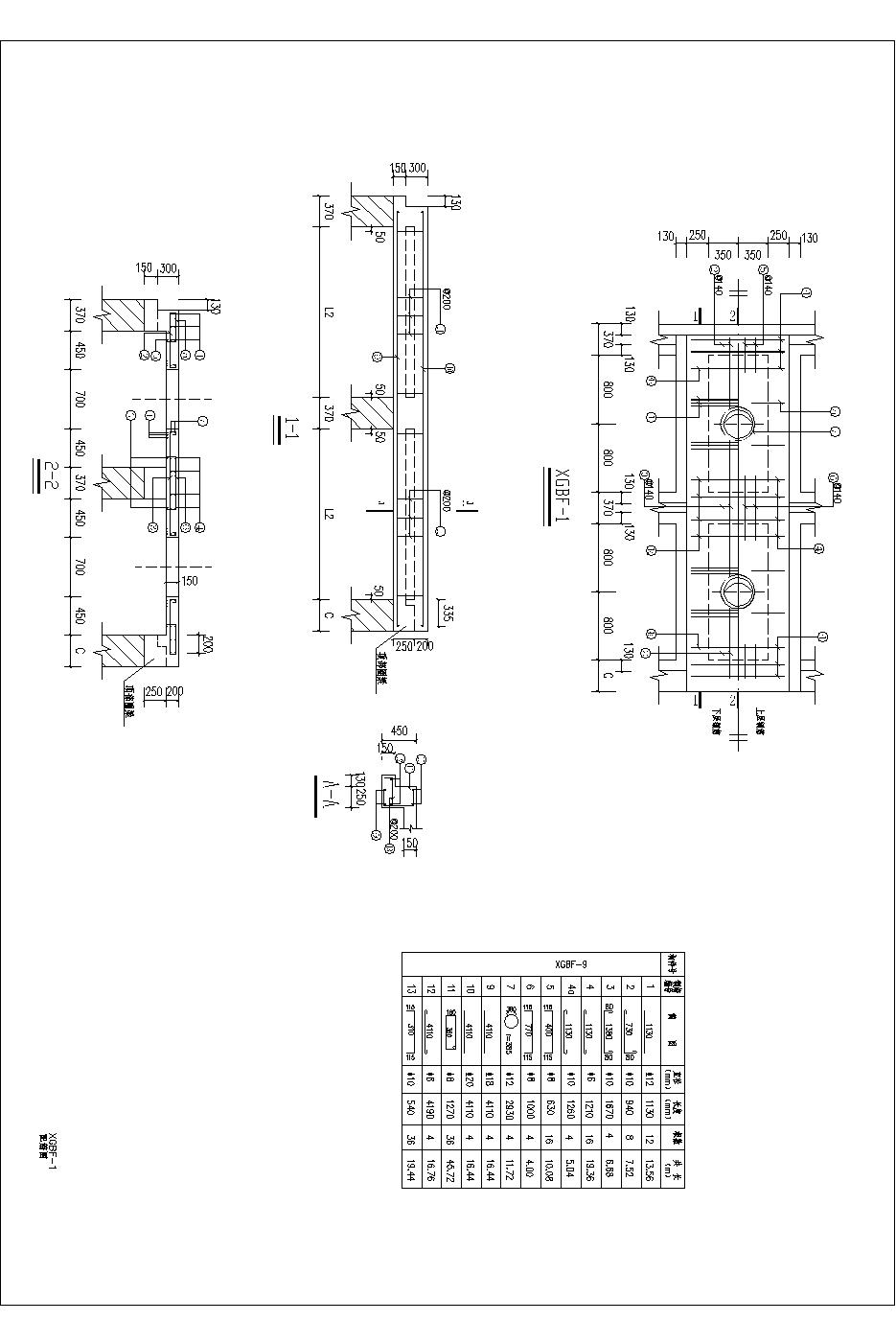
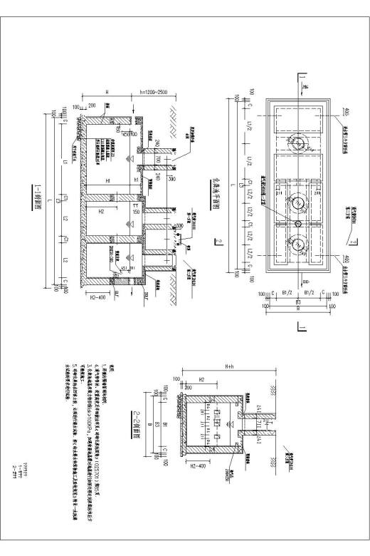
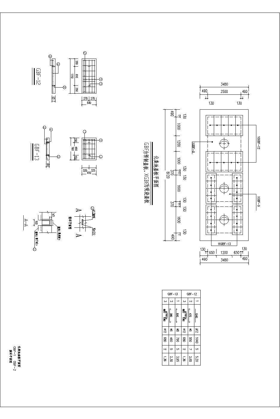
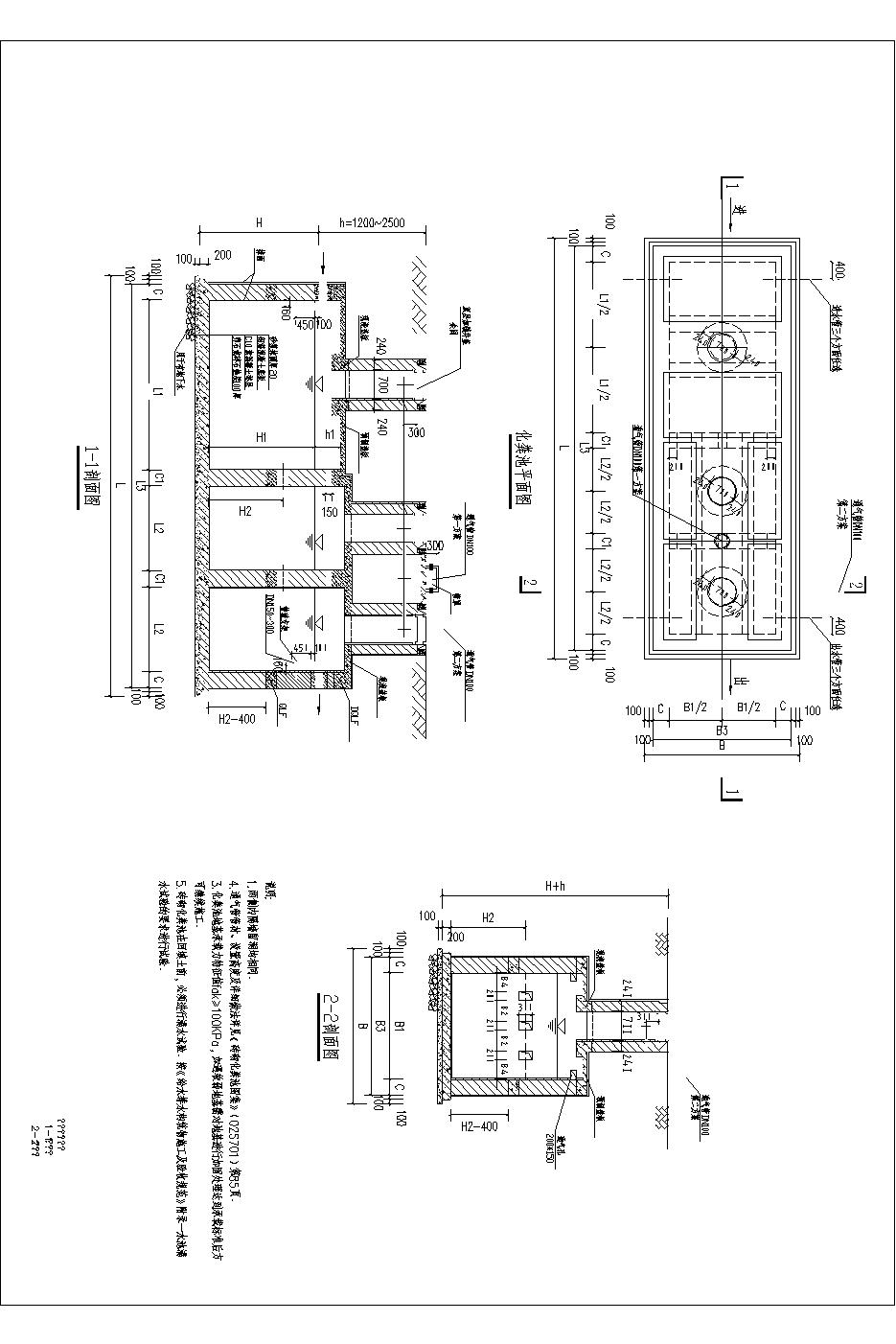
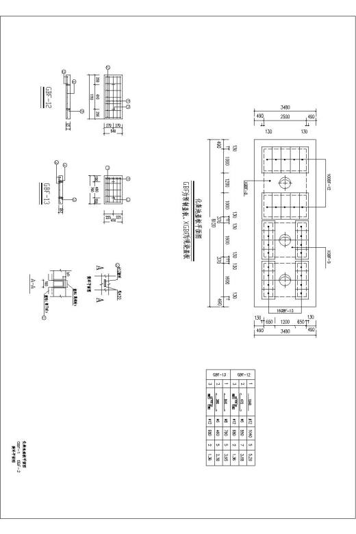
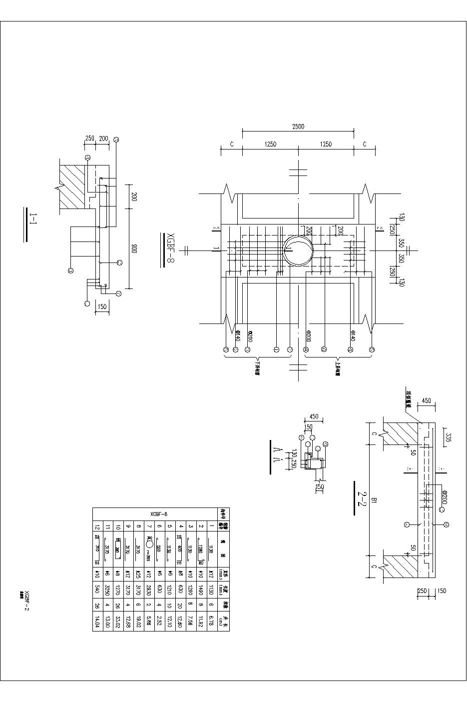
10号40m3砖砌化粪池全套设计图AutoCAD图档

图档名称为:10号40m3砖砌化粪池全套设计图,属于机械设备,非标机械分类,软件为AutoCAD, 图纸格式为dwg,可在线预览,可编辑,可供设计参考

加入收藏
模型参数

模型ID:10237458

模型大小:3.51M

软件版本: AutoCAD 2013

模型格式:dwg

是否可编辑:可修改,包括参数

上传时间:2025-06-02

图纸介绍:

免费下载
文件列表
1. 点击领取免费资料.html
224 B
2. 附件1-10号砖砌化粪池.bak
1.74 MB
3. 附件1-10号砖砌化粪池.dwg
1.96 MB
4. 附件2-50立dad方化粪池_t3-Model.jpg
102 KB
5. 附件3-50立dwwq方化粪池_t3-Model.jpg
122 KB
6. 附件4-50立方ffa化粪池_t3-Model.jpg
111 KB
7. 附件5-50立方化dadwq粪池_t3-Model.jpg
87.1 KB
8. 附件6-50立方化dd粪池_t3-Model.jpg
118 KB
9. 附件7-50立方化粪as池_t3-Model.jpg
139 KB
10. 附件8-50立方化粪池a-Model.jpg
154 KB
【10号40m3砖砌化粪池全套设计图】相关作品
下载提示
×

下载该图档需要消耗0金币!

确认下载
-- 热门充值套餐 · 限时优惠 --
加载中