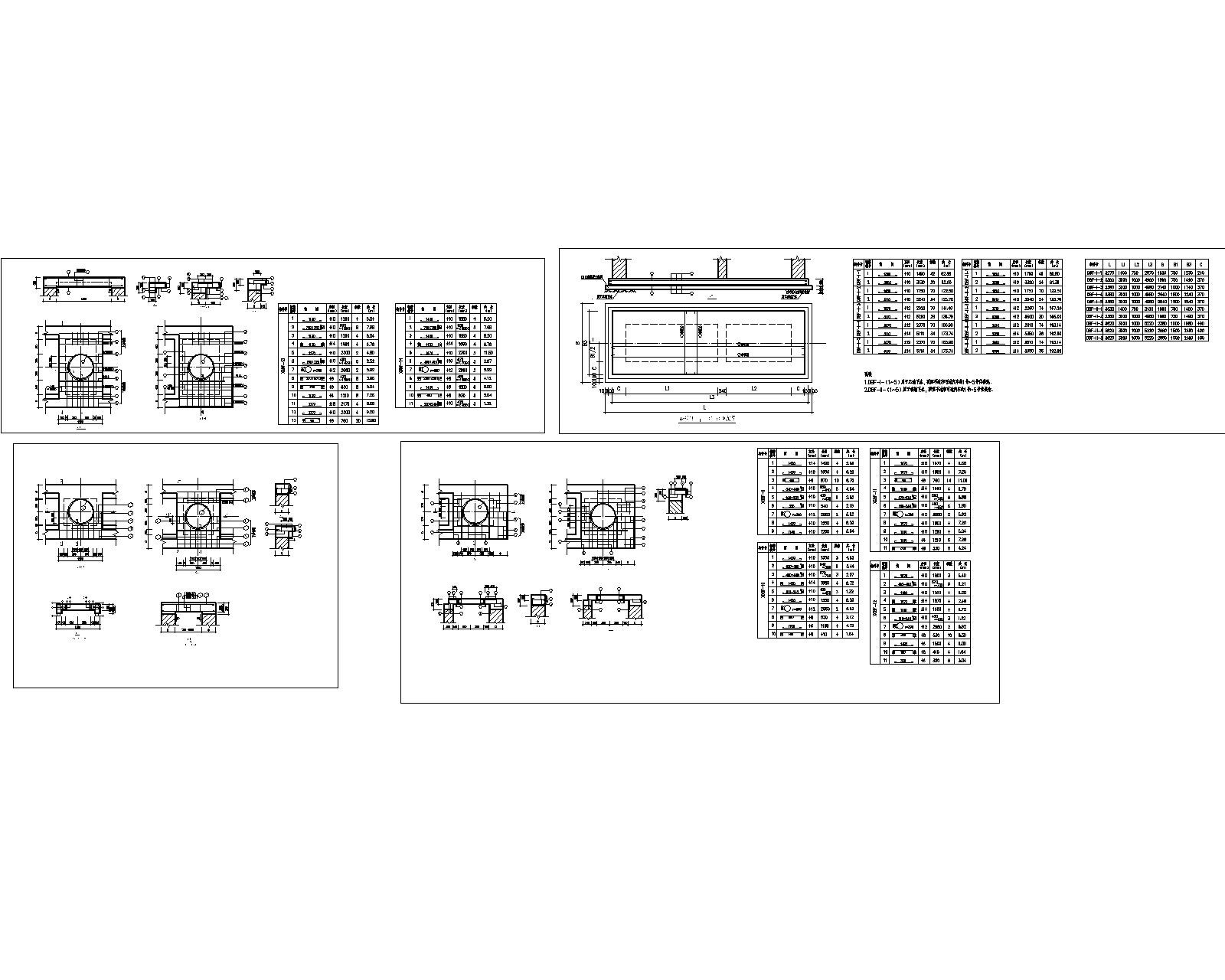
1-5号砖砌化粪池做法,带全部配筋结构图纸AutoCAD图档

图档名称为:1-5号砖砌化粪池做法,带全部配筋结构图纸,属于机械设备,钢结构支架分类,软件为AutoCAD, 图纸格式为dwg,可在线预览,可编辑,可供设计参考

加入收藏
模型参数

模型ID:10329099

模型大小:655.04KB

软件版本: AutoCAD 2013

模型格式:dwg

是否可编辑:可修改,包括参数

上传时间:2025-12-02

图纸介绍:

下载模型
作品: 322
粉丝: 0
文件列表
1. 点击领取免费资料.html
224 B
2. 附件1-1-5号砖砌化粪池.dwg
505 KB
3. 附件2-1-5号砖砌化粪池-Model3.jpg
241 KB
【1-5号砖砌化粪池做法,带全部配筋结构图纸】相关作品
下载提示
×

下载该图档需要消耗10金币!

确认下载
-- 热门充值套餐 · 限时优惠 --
加载中