某中学教学楼cad设计AutoCAD图档

图档名称为:某中学教学楼cad设计,属于建筑设施,公用设施分类,软件为AutoCAD, 图纸格式为dwg,可在线预览,可编辑,可供设计参考

加入收藏
模型参数

模型ID:10303221

模型大小:6.4M

软件版本: AutoCAD 2007

模型格式:dwg

是否可编辑:可修改,包括参数

上传时间:2025-11-08

图纸介绍:

下载模型
望青山
作品: 0
粉丝: 0
文件列表
1. 建筑.jpg
961 KB
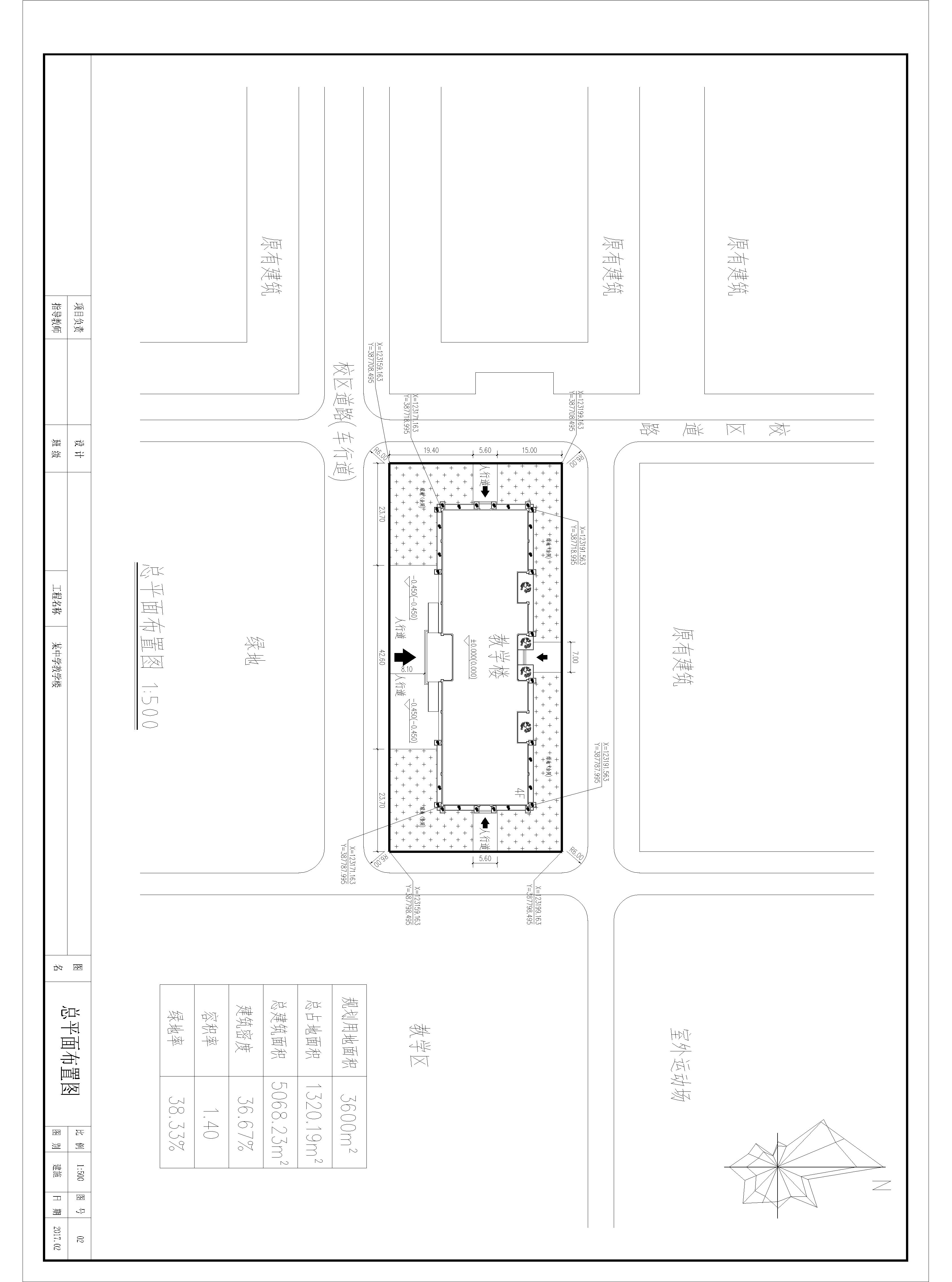
2. 总图.jpg
709 KB
3. 教学楼结构设计任务书.doc
90.7 KB
4. 某中学教学楼-建筑(定).dwg
595 KB
5. 某中学教学楼-总图(定).dwg
130 KB
6. 某中学教学楼-结构(定).dwg
3.07 MB
7. 某中学教学楼施工组织设计.doc
1.84 MB
8. 某中学教学楼结构设计计算书.doc
1.56 MB
9. 毕业答辩.doc
15.5 KB
10. 清单.png
9.32 KB
11. 结构.jpg
808 KB
【某中学教学楼cad设计】相关作品
滚动更载更多~
提示
×

下载该图档需要消耗20金币!

确认下载
加载中