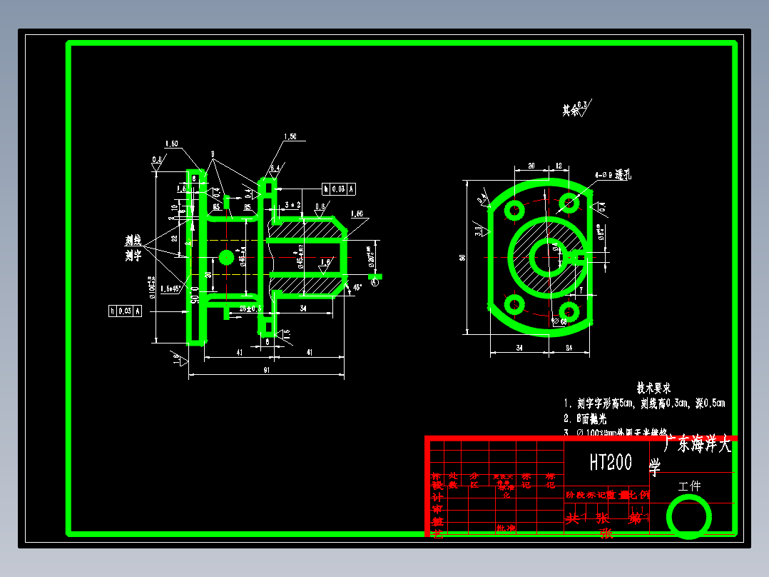
831004法兰盘加工工艺及钻φ4和φ6孔夹具设计【方案1】【含3个夹具零件图】AutoCAD图档

图档名称为:831004法兰盘加工工艺及钻φ4和φ6孔夹具设计【方案1】【含3个夹具零件图】,属于设备部件,管道附件分类,软件为AutoCAD, 图纸格式为dwg,可在线预览,可编辑,可供设计参考

加入收藏
模型参数

模型ID:10302691

模型大小:594.47KB

软件版本: AutoCAD 2007

模型格式:dwg

是否可编辑:可修改,包括参数

上传时间:2025-11-07

图纸介绍:

下载模型
作品: 260
粉丝: 0
文件列表
1. 夹具体.dwg
55.4 KB
2. 夹具总装图.dwg
97.2 KB
3. 定位套.dwg
61 KB
4. 机械加工工序卡.doc
80.5 KB
5. 机械加工工艺过程卡片.doc
51.5 KB
6. 毛坯图-A3.dwg
98.9 KB
7. 法兰盘机械加工工艺过程综合卡片.doc
5.22 MB
8. 设计说明书.doc
299 KB
9. 钻模板.dwg
46.7 KB
10. 零件图-A3.dwg
142 KB
【831004法兰盘加工工艺及钻φ4和φ6孔夹具设计【方案1】【含3个夹具零件图】】相关作品
下载提示
×

下载该图档需要消耗10金币!

确认下载
-- 热门充值套餐 · 限时优惠 --
加载中