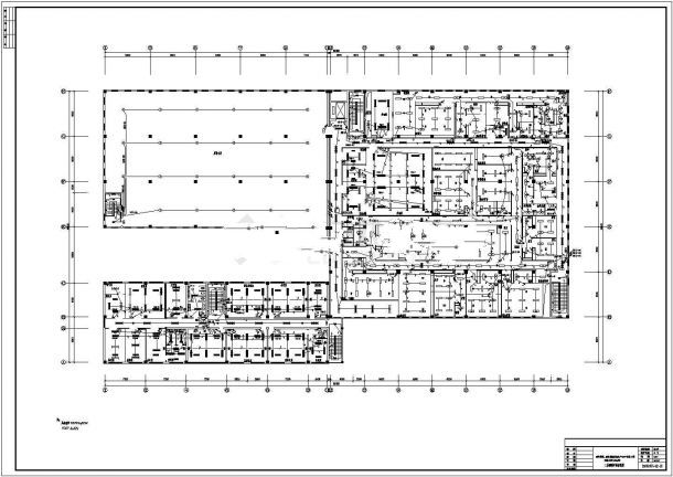
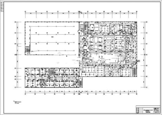
制药车间照明系统设计方案及施工全套CAD纸AutoCAD图档

图档名称为:制药车间照明系统设计方案及施工全套CAD纸,属于建筑设施,办公厂房分类,软件为AutoCAD, 图纸格式为dwg,可在线预览,可编辑,可供设计参考

加入收藏
模型参数

模型ID:10245519

模型大小:989.13KB

软件版本: AutoCAD 2007

模型格式:dwg

是否可编辑:可修改,包括参数

上传时间:2025-06-12

图纸介绍:

下载模型
九离
作品: 0
粉丝: 0
文件列表
1. 16615795977470512463.dwg
981 KB
2. rBBhH11IJjWAd82jAANirVcHNPU458-3.jpg!610c.jpg
36.5 KB
3. rBBhH11IJjWAd82jAANirVcHNPU458-4.jpg!610c.jpg
54.9 KB
4. 土木在线合伙人计划书.html
236 B
【制药车间照明系统设计方案及施工全套CAD纸】相关作品
滚动更载更多~
提示
×

下载该图档需要消耗20金币!

确认下载
加载中