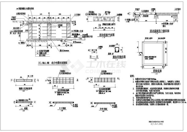
多种宽度电缆沟断面设计图纸及大样详图AutoCAD图档

图档名称为:多种宽度电缆沟断面设计图纸及大样详图,属于电力仪表,电气附件分类,软件为AutoCAD, 图纸格式为dwg,可在线预览,可编辑,可供设计参考

加入收藏
模型参数

模型ID:10245396

模型大小:569.08KB

软件版本: AutoCAD 2004

模型格式:dwg

是否可编辑:可修改,包括参数

上传时间:2025-06-12

图纸介绍:

下载模型
临晚照
作品: 0
粉丝: 0
文件列表
1. 16616971445235778261.dwg
505 KB
2. rBBhIF1HdEeAcQavAAJEsIKHQsI780-1.jpg!610c.jpg
48.2 KB
3. rBBhIF1HdEeAcQavAAJEsIKHQsI780-2.jpg!610c.jpg
50.8 KB
4. rBBhIF1HdEeAcQavAAJEsIKHQsI780-3.jpg!610c.jpg
47.7 KB
5. 土木在线合伙人计划书.html
236 B
【多种宽度电缆沟断面设计图纸及大样详图】相关作品
滚动更载更多~
提示
×

下载该图档需要消耗10金币!

确认下载
加载中