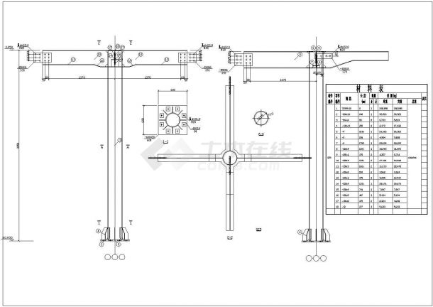
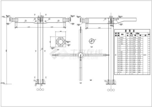
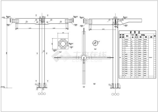
玻璃采光顶幕墙采光顶钢结构节点构造详图CAD施工图纸AutoCAD图档

图档名称为:玻璃采光顶幕墙采光顶钢结构节点构造详图CAD施工图纸,属于机械设备,钢结构支架分类,软件为AutoCAD, 图纸格式为dwg,可在线预览,可编辑,可供设计参考

加入收藏
模型参数

模型ID:10244629

模型大小:416.97KB

软件版本: AutoCAD 2004

模型格式:dwg

是否可编辑:可修改,包括参数

上传时间:2025-06-11

图纸介绍:

下载模型
文件列表
1. 16616776755963520684.dwg
446 KB
2. rBBhH11H5U-AY2aqAAD6par5t7w217-3.jpg!610c.jpg
30.1 KB
3. rBBhH11H5U-AY2aqAAD6par5t7w217-4.jpg!610c.jpg
33.7 KB
4. 土木在线合伙人计划书.html
236 B
【玻璃采光顶幕墙采光顶钢结构节点构造详图CAD施工图纸】相关作品
下载提示
×

下载该图档需要消耗20金币!

确认下载
-- 热门充值套餐 · 限时优惠 --
加载中