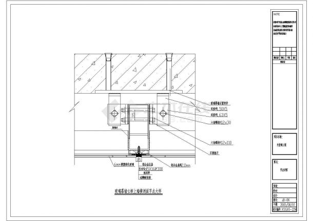
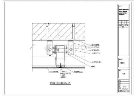
玻璃幕墙、铝塑板幕墙、地弹门铝合金窗玻璃橱窗节点详图CAD图AutoCAD图档

图档名称为:玻璃幕墙、铝塑板幕墙、地弹门铝合金窗玻璃橱窗节点详图CAD图,属于建筑设施,建筑相关分类,软件为AutoCAD, 图纸格式为dwg,可在线预览,可编辑,可供设计参考

加入收藏
模型参数

模型ID:10249465

模型大小:1.08M

软件版本: AutoCAD 2004

模型格式:dwg

是否可编辑:可修改,包括参数

上传时间:2025-06-17

图纸介绍:

下载模型
采菽
作品: 0
粉丝: 0
文件列表
1. 1495011051564.png
62.2 KB
2. 16615763093855135500.dwg
1.11 MB
3. rBBhH11He_GACpUPAAFgNO-nV8o230-3.jpg!610c.jpg
32.3 KB
4. rBBhH11He_GACpUPAAFgNO-nV8o230-4.jpg!610c.jpg
28.8 KB
5. 土木在线合伙人计划书.html
236 B
【玻璃幕墙、铝塑板幕墙、地弹门铝合金窗玻璃橱窗节点详图CAD图】相关作品
滚动更载更多~
提示
×

下载该图档需要消耗10金币!

确认下载
加载中