某地地铁车站、盾构始发井全套施工设计cad图(含平面布置图)AutoCAD图档

图档名称为:某地地铁车站、盾构始发井全套施工设计cad图(含平面布置图),属于交通运输,轨道交通分类,软件为AutoCAD, 图纸格式为dwg,可在线预览,可编辑,可供设计参考

加入收藏
模型参数

模型ID:10301439

模型大小:3.01M

软件版本: AutoCAD 2000

模型格式:dwg

是否可编辑:可修改,包括参数

上传时间:2025-11-06

图纸介绍:

下载模型
西洲
作品: 0
粉丝: 0
文件列表
1. Snap1.jpg
124 KB
2. Snap2.jpg
34 KB
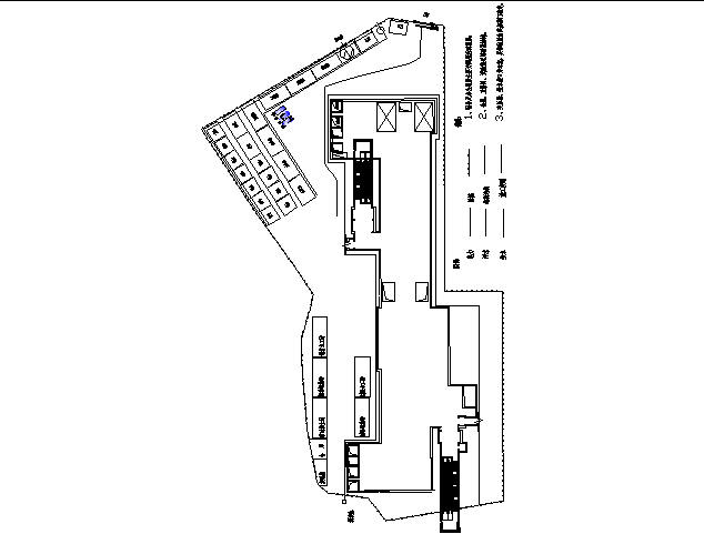
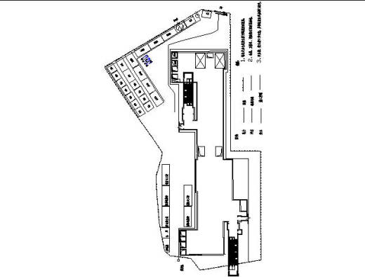
3. XX站施工平面布置.dwg
255 KB
4. 加入社群,领取专属礼包.html
226 B
5. 土木在线合伙人计划书.html
236 B
6. 盾构始发井盾构施工阶段平面布置示意图.dwg
3.33 MB
7. 盾构始发井结构施工阶段平面布置示意图.dwg
3.32 MB
【某地地铁车站、盾构始发井全套施工设计cad图(含平面布置图)】相关作品
滚动更载更多~
提示
×

下载该图档需要消耗20金币!

确认下载
加载中