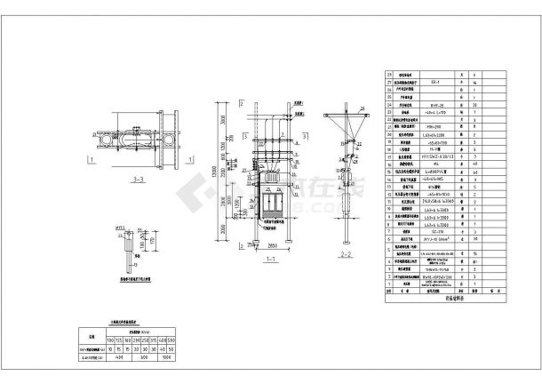
10KV台架变-变压器双杆柱上变台型台架变安装图CAD图纸AutoCAD图档

图档名称为:10KV台架变-变压器双杆柱上变台型台架变安装图CAD图纸,属于电力仪表,电力设备分类,软件为AutoCAD, 图纸格式为dwg,可在线预览,可编辑,可供设计参考

加入收藏
模型参数

模型ID:10255645

模型大小:158.56KB

软件版本: AutoCAD 2007

模型格式:dwg

是否可编辑:可修改,包括参数

上传时间:2025-06-22

图纸介绍:

下载模型
星河流转
作品: 0
粉丝: 0
文件列表
1. 16876148522776728265.dwg
172 KB
2. rBBhIF1HPoqAR1CXAAG24TQLaHg909-1.jpg!610c.jpg
34.2 KB
3. 点击领取免费资料.html
224 B
【10KV台架变-变压器双杆柱上变台型台架变安装图CAD图纸】相关作品
滚动更载更多~
提示
×

下载该图档需要消耗20金币!

确认下载
加载中