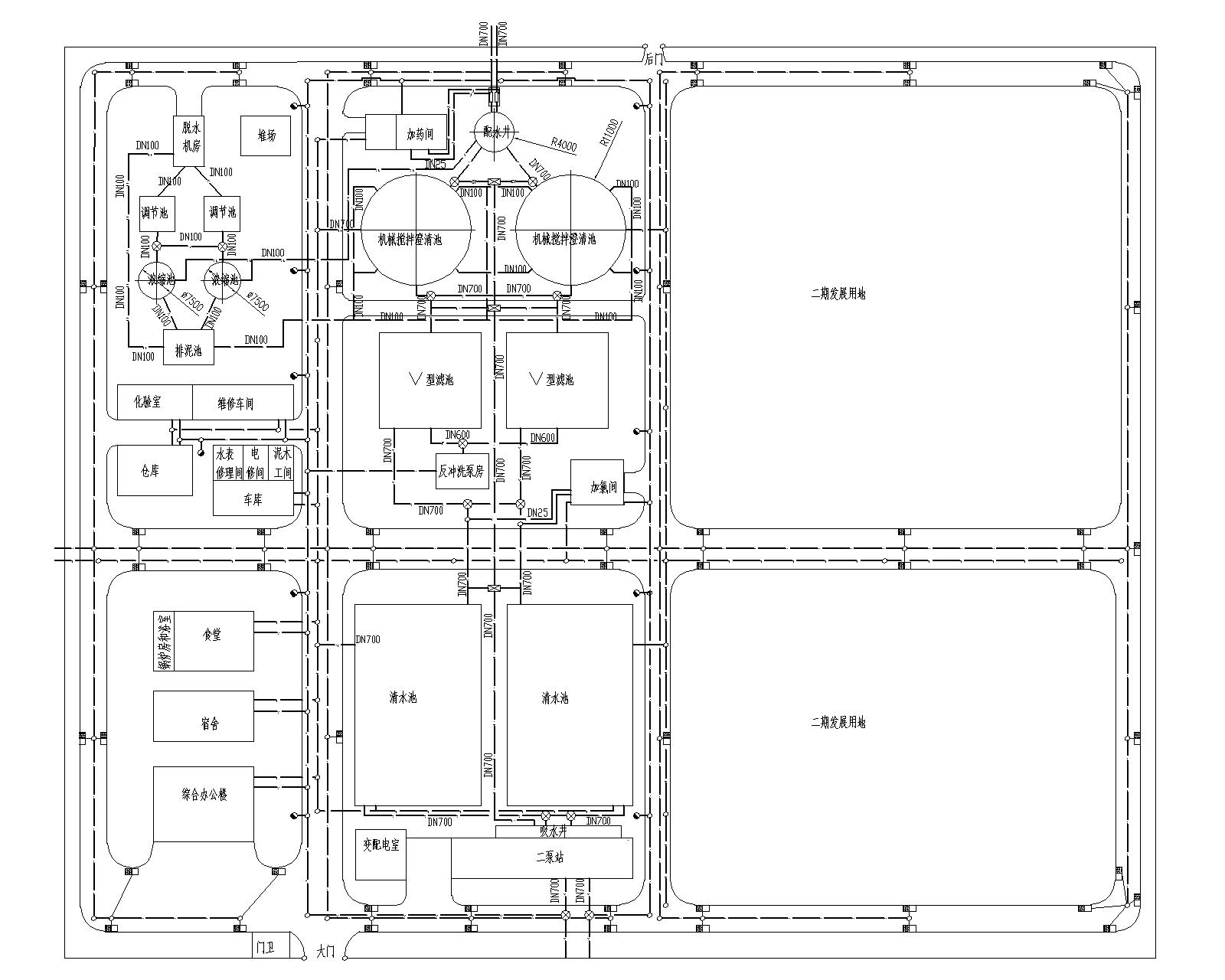
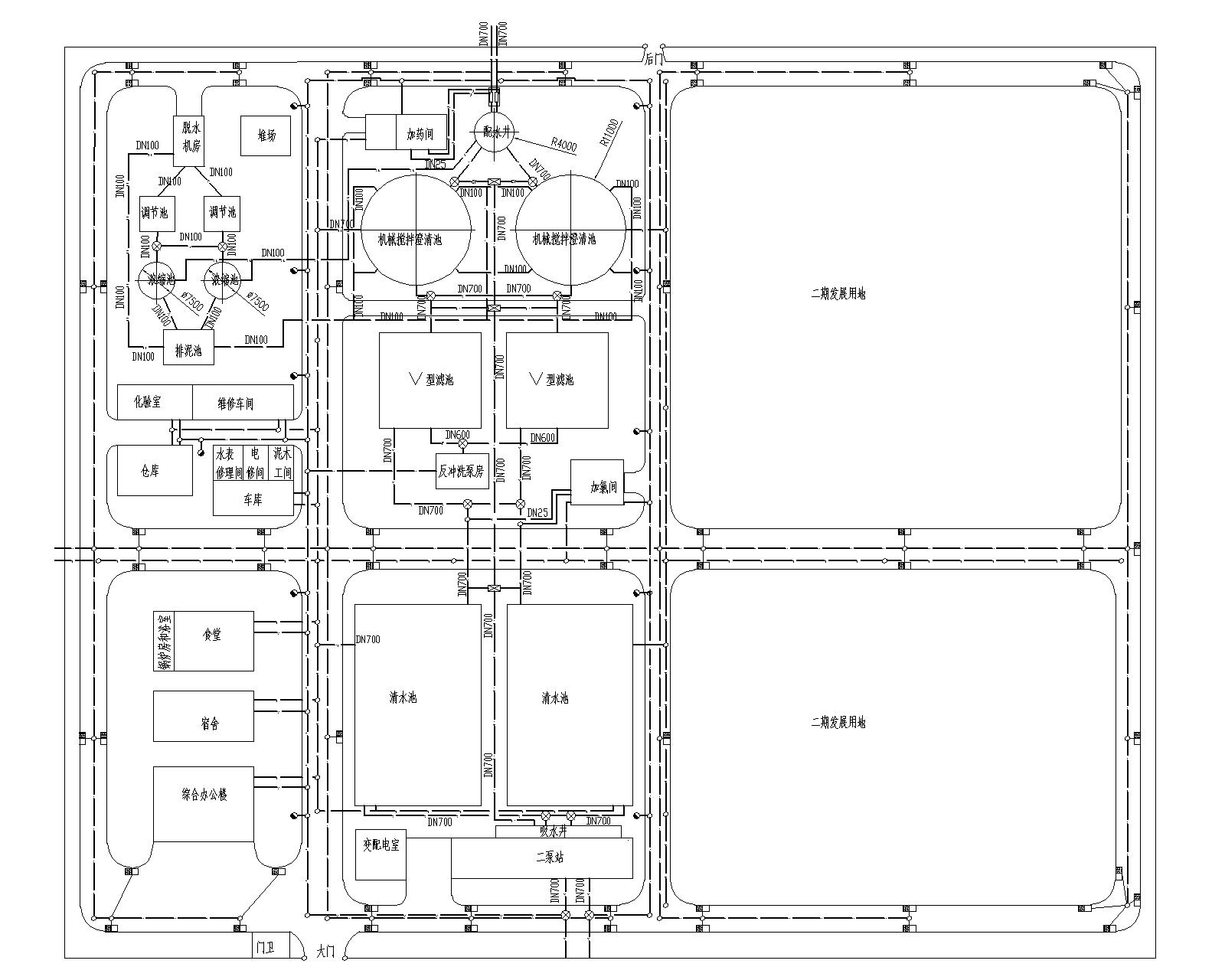
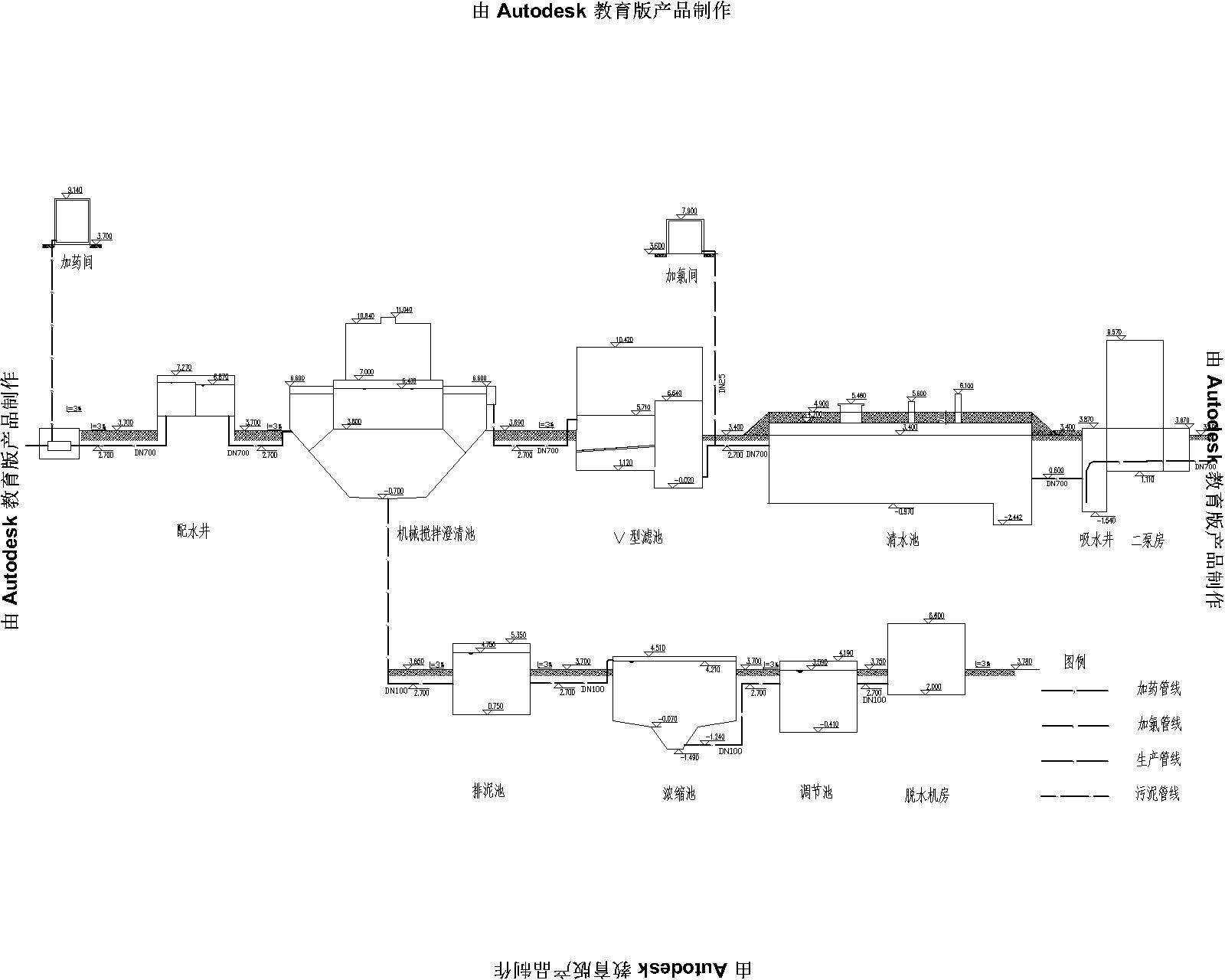
10万吨给水厂设计CAD图纸(含设计说明)高程布置机械搅拌澄清池AutoCAD图档

图档名称为:10万吨给水厂设计CAD图纸(含设计说明)高程布置机械搅拌澄清池,属于机械设备,非标机械分类,软件为AutoCAD, 图纸格式为dwg,可在线预览,可编辑,可供设计参考

加入收藏
模型参数

模型ID:10245437

模型大小:2.65M

软件版本: AutoCAD 2000

模型格式:dwg

是否可编辑:可修改,包括参数

上传时间:2025-06-12

图纸介绍:

下载模型
岁晚
作品: 0
粉丝: 0
文件列表
1. T1UFC_BXKT1RCvBVdK.jpg
217 KB
2. T1WXC_BXhT1RCvBVdK.jpg
121 KB
3. T1uFY_BXbT1RCvBVdK.jpg
215 KB
4. 二泵房.dwg
150 KB
5. 加氯间.dwg
511 KB
6. 加药间.dwg
266 KB
7. 平面.dwg
265 KB
8. 开题报告.doc
53.5 KB
9. 机械搅拌澄清池.dwg
384 KB
10. 浓缩池大样图.dwg
376 KB
11. 清水池.dwg
388 KB
12. 滤池.dwg
396 KB
13. 翻译.doc
117 KB
14. 计算书.doc
1.3 MB
15. 设备材料表及图纸说明.dwg
68.1 KB
16. 说明书.doc
194 KB
17. 高程.dwg
372 KB
【10万吨给水厂设计CAD图纸(含设计说明)高程布置机械搅拌澄清池】相关作品
滚动更载更多~
提示
×

下载该图档需要消耗20金币!

确认下载
加载中